


It’s the façade of an old carpenter’s workshop in London, rehabilitated and converted by architect Jack Woolley, who sez:
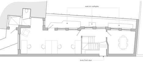
The original workshop is set behind an old wall that links two 19th century terraces, forming a gap that frames a borrowed landscape of tree canopies. the aim of the design was to double the inhabitable volume without compromising the integrity of wall or landscape.
Old Workshop by Jack Woolley (De Zeen)
Sponsored Link

